Como transformar em fracções?
Transformar construções de um único proprietário (propriedade plena) em propriedade horizontal, não é mais do que dividir a mesma em partes (fracções) autónomas.
Este procedimento vai permitir, que cada uma das fracções possa entrar no mercado imobiliário de forma independente e para diferentes proprietários.
No entanto, é necessário que da divisão resultem fracções que cumpram os requisitos regulamentares para a utilização pretendida, seja para habitação ou serviços.
Desde logo, cada fracção tem de ter um acesso independente, seja para uma parte comum e desta para a via pública, ou directamente para esta.
Por onde começar?
Na base de todo o processo, está o projecto de arquitectura com as alterações pretendidas e consequente operação urbanística municipal consoante o tipo de intervenção.
Para tal, deve recorrer ao apoio de uma equipa multidisciplinar, que desenvolva e execute todas as fases do processo.
É o projecto aprovado pela autarquia, que vai permitir redigir o documento da propriedade horizontal.
O que é a Propriedade Horizontal?
A propriedade horizontal, é o documento que caracteriza cada uma das fracções e define a sua quota parte no valor total do edifício, expresso em percentagem ou permilagem.
É com este valor relativo de cada fracção na totalidade do prédio, que será calculada a comparticipação nas despesas de manutenção e de conservação.
A Propriedade Horizontal, terá de incluir:
– a caracterização cadastral do prédio e a sua constituição de acordo com as alterações realizadas
– a identificação de cada uma das fracções por ordem alfabética e com:
- a sua localização no edifício
- o uso a que destina
- a tipologia (no caso de habitação)
- a descrição dos compartimentos privativos e dependentes
- a quantificação das áreas brutas privativas e dependentes
- a percentagem ou permilagem respectiva.
– a descrição das partes comuns como:
- o solo
- a estrutura
- o telhado ou cobertura
- os terraços de cobertura
- as infraestruturas técnicas
- os equipamentos
- as áreas de acesso, de circulação e de fruição para os ocupantes
- as áreas de circulação automóvel
- os compartimentos para uso do condomínio
- e no geral, tudo o que não seja afecto ao uso exclusivo das fracções.
– o regulamento que defina e discipline o uso, a fruição, a conservação e a manutenção de todos os espaços comuns e das fracções
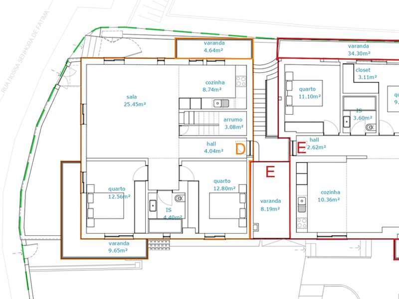
– desenhos com as plantas, identificando e delimitando os limites de cada fracção

O que fazer com a propriedade horizontal?
Com este conjunto de peças escritas e desenhadas constituídas num único documento, este deverá ser objecto de escritura pública ou documento particular autenticado.
Para este acto é necessário também, apresentar o documento emitido pela Câmara Municipal a comprovar que as fracções cumprem os requisitos legais.
Por fim e para ser validado oficialmente, o Título Constitutivo da Propriedade Horizontal, deve ser registado na Conservatória do Registo Predial da zona onde se localiza o prédio.
É este documento, que requerido na CRP, é válido para qualquer acto relacionado com a fracção ou com o condomínio em geral.
Deve requerer uma cópia do Título Constitutivo da Propriedade Horizontal na Conservatória do Registo Predial para ter na sua posse, tal como o Condomínio.
umseisum – pensa como um cliente ao trabalhar sempre com ele, e a seu lado
contacte-nos acompanhe o nosso blog


